推奨利用人数
15人~19人
【成約済み】加藤ビル(内神田) 3階
- 所在地:東京都千代田区内神田1丁目5番4号
- 交通:東京メトロ丸の内線「大手町」駅徒歩5分
- 交通2:JR山手線「神田」駅徒歩6分
- 交通3:都営新宿線「小川町」駅徒歩7分
| 賃料:-- (税別) | 管理費:0円 (税別) |
| 敷金:6ヶ月- | 礼金:1ヶ月 |
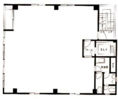
| 面積:118.21m² | 所在階:地上3階 |
| 間取り:事務所 | 築年月:1982年10月 |
| 賃料/管理費 | -- (税別)/0円 (税別) | フリーレント | 0ヶ月 |
|---|---|---|---|
| 敷金/礼金 | 6ヶ月/1ヶ月 | 内見・入居 | |
| 間取り | 事務所 | 面積 | 118.21m² |
| 所在階 | 地上3階 | 最大スペース | |
| 住所 | 東京都千代田区内神田1丁目5番4号 | 最寄駅 | 東京メトロ丸の内線「大手町」駅徒歩5分 JR山手線「神田」駅徒歩6分 都営新宿線「小川町」駅徒歩7分 |
| その他交通 | 築年月 | 1982年10月 | |
| 方角 | 構造 | 鉄骨構造(S造) 7階建 | |
| 契約期間 | 2年間 | 契約形態 | 普通借家 |
| 償却 | 2ヶ月 | 設備 | エレベーター |
| 更新料 | 1ヶ月 | 更新日 | 2025年09月11日 |
| 備考 | |||



お問い合わせの際は、「部屋No.26504」とお伝えください。






























1982年竣工、ボーダー模様のレンガ張りの外観ち前面のガラス張りが個性的な建物です。
1フロア1テナント利用、室内に男女別トイレと給湯室が完備され使い勝手のよい間取りです。個別空調やOAフロアも完備で設備面も充実しています。
神田駅の西側エリアに位置し、外堀通りから少し入った場所にあります。外堀通り沿いにはコンビニや飲食店も多く便利です。