推奨利用人数
25人~29人
【成約済み】SKビル(八丁堀) 2階
- 所在地:東京都中央区八丁堀4丁目13番4号
- 交通:東京メトロ日比谷線「八丁堀」駅徒歩1分
- 交通2:東京メトロ東西線「茅場町」駅徒歩8分
- 交通3:東京メトロ日比谷線「八丁堀」駅徒歩1分
| 賃料:相談 (税別) | 管理費:相談 (税別) |
| 敷金:12ヶ月- | 礼金:0ヶ月 |
| 面積:195.67m² | 所在階:地上2階 |
| 間取り:事務所 | 築年月:1986年01月 |
| 賃料/管理費 | 相談 (税別)/相談 (税別) | フリーレント | 0ヶ月 |
|---|---|---|---|
| 敷金/礼金 | 12ヶ月/0ヶ月 | 内見・入居 | 内見可 |
| 間取り | 事務所 | 面積 | 195.67m² |
| 所在階 | 地上2階 | 最大スペース | |
| 住所 | 東京都中央区八丁堀4丁目13番4号 | 最寄駅 | 東京メトロ日比谷線「八丁堀」駅徒歩1分 東京メトロ東西線「茅場町」駅徒歩8分 東京メトロ日比谷線「八丁堀」駅徒歩1分 |
| その他交通 | 築年月 | 1986年01月 | |
| 方角 | 構造 | 鉄骨構造(S造) 10階建 | |
| 契約期間 | その他 | 契約形態 | |
| 償却 | 0ヶ月 | 設備 | エレベーター |
| 更新料 | 更新日 | 2025年09月11日 | |
| 備考 | |||



お問い合わせの際は、「部屋No.38270」とお伝えください。






























1986年竣工、白いパネル張りの外観の清潔感のある建物です。新耐震基準をクリアしています。
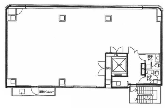
基準となるフロアは1フロア約59坪。EV1基、1フロア1テナント利用のオフィスです。
室内はL字型の間取り、共用部に男女別のトイレと給湯室があり使い勝手も良好です。セキュリティは機械警備を導入しており安心して24時間ご利用いただけます。
鍛冶橋通り沿いに立地しており、周辺には飲食店なども多くランチ環境も充実しています。