推奨利用人数
11人~12人
【成約済み】神田荒木ビル 1階
- 所在地:東京都千代田区神田須田町1丁目14番6号
- 交通:JR山手線「神田」駅徒歩5分
- 交通2:東京メトロ丸の内線「淡路町」駅徒歩3分
- 交通3:都営新宿線「小川町」駅徒歩5分
| 賃料:-- (税別) | 管理費:0円 (税別) |
| 敷金:10ヶ月- | 礼金:0ヶ月 |
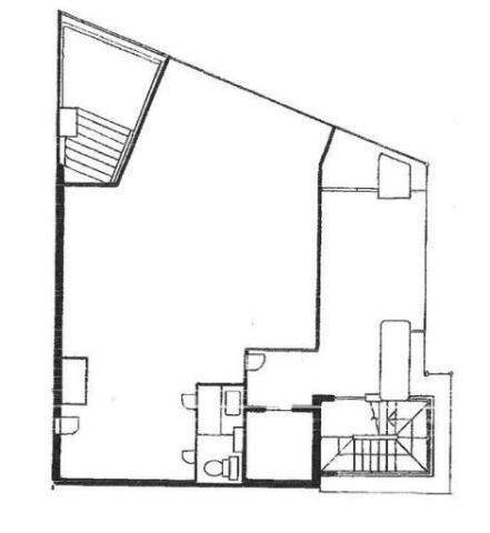
| 面積:74.21m² | 所在階:地上1階 |
| 間取り:事務所 | 築年月:1992年03月 |
| 賃料/管理費 | -- (税別)/0円 (税別) | フリーレント | 0ヶ月 |
|---|---|---|---|
| 敷金/礼金 | 10ヶ月/0ヶ月 | 内見・入居 | 内見可 |
| 間取り | 事務所 | 面積 | 74.21m² |
| 所在階 | 地上1階 | 最大スペース | |
| 住所 | 東京都千代田区神田須田町1丁目14番6号 | 最寄駅 | JR山手線「神田」駅徒歩5分 東京メトロ丸の内線「淡路町」駅徒歩3分 都営新宿線「小川町」駅徒歩5分 |
| その他交通 | 築年月 | 1992年03月 | |
| 方角 | 構造 | 鉄骨鉄筋コンクリート造(SRC造) 10階建 | |
| 契約期間 | 3年間 | 契約形態 | 定期借家 |
| 償却 | 0ヶ月 | 設備 | エレベーター , OAフロア |
| 更新料 | 1ヶ月 | 更新日 | 2025年09月11日 |
| 備考 | ・ビル使用時間:6時~23時(時間外使用不可) | ||



お問い合わせの際は、「部屋No.38384」とお伝えください。






























白いタイル張りの外観の建物です
靖国通り沿いの須田町交差点そばに立地
交通量の多いにぎやかな立地です
周辺は飲食店が多く、ランチ時に重宝しそうです
神田駅のほか、淡路町・小川町へ徒歩5分以内にアクセスが可能!
トイレ2箇所あり、男女別。
給湯・冷暖房・エアコン・個別空調で快適なオフィスです。