推奨利用人数
13人~14人
みさきBLD 5階
- 所在地:東京都千代田区神田三崎町3丁目10番2号
- 交通:JR中央・総武線「水道橋」駅徒歩2分
- 交通2:東京メトロ東西線「飯田橋」駅徒歩6分
- 交通3:東京メトロ半蔵門線「九段下」駅徒歩8分
| 賃料:370,350円 (税別) | 管理費:0円 (税別) |
| 敷金:6ヶ月- | 礼金:0ヶ月 |
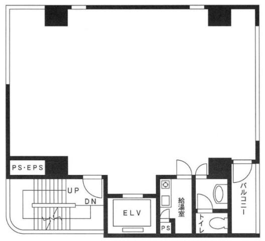
| 面積:81.62m² | 所在階:地上5階 |
| 間取り:事務所 | 築年月:1990年07月 |
| 賃料/管理費 | 370,350円 (税別)/0円 (税別) | フリーレント | 0ヶ月 |
|---|---|---|---|
| 敷金/礼金 | 6ヶ月/0ヶ月 | 内見・入居 | 内見可 |
| 間取り | 事務所 | 面積 | 81.62m² |
| 所在階 | 地上5階 | 最大スペース | |
| 住所 | 東京都千代田区神田三崎町3丁目10番2号 | 最寄駅 | JR中央・総武線「水道橋」駅徒歩2分 東京メトロ東西線「飯田橋」駅徒歩6分 東京メトロ半蔵門線「九段下」駅徒歩8分 |
| その他交通 | 築年月 | 1990年07月 | |
| 方角 | 構造 | 鉄筋コンクリート造(RC造) 7階建 | |
| 契約期間 | 2年間 | 契約形態 | 普通借家 |
| 償却 | 0ヶ月 | 設備 | エレベーター |
| 更新料 | 1ヶ月 | 更新日 | 2025年09月11日 |
| 備考 | |||



お問い合わせの際は、「部屋No.40936」とお伝えください。






























1990年竣工、白いタイル張りの外観の清潔感のある建物です。新耐震基準をクリアしています。
基準となるフロアは1フロア約24坪。EV1基、1フロア1テナント利用のオフィスです。
室内にはトイレと水回りがあり使い勝手も良好です。セキュリティは機械経緯を導入しています。
周辺には飲食店が多く便利!建物裏手には川が流れ、穏やかな雰囲気のエリアです。