推奨利用人数
15人~19人
【成約済み】満来ビル 7階
- 所在地:東京都新宿区西新宿1丁目4番10号
- 交通:JR山手線「新宿」駅徒歩4分
- 交通2:東京メトロ丸の内線「西新宿」駅徒歩7分
- 交通3:都営大江戸線「都庁前」駅徒歩11分
| 賃料:相談 (税別) | 管理費:相談 (税別) |
| 敷金:12ヶ月- | 礼金:0ヶ月 |
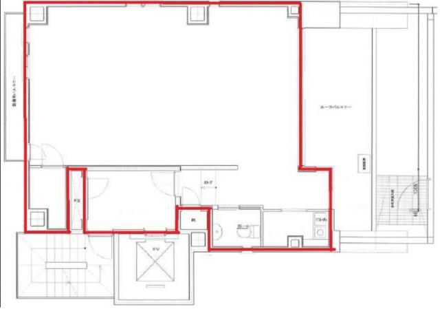
| 面積:95.08m² | 所在階:地上7階 |
| 間取り:事務所 | 築年月:2007年12月 |
| 賃料/管理費 | 相談 (税別)/相談 (税別) | フリーレント | |
|---|---|---|---|
| 敷金/礼金 | 12ヶ月/0ヶ月 | 内見・入居 | |
| 間取り | 事務所 | 面積 | 95.08m² |
| 所在階 | 地上7階 | 最大スペース | |
| 住所 | 東京都新宿区西新宿1丁目4番10号 | 最寄駅 | JR山手線「新宿」駅徒歩4分 東京メトロ丸の内線「西新宿」駅徒歩7分 都営大江戸線「都庁前」駅徒歩11分 |
| その他交通 | 築年月 | 2007年12月 | |
| 方角 | 構造 | 鉄骨構造(S造)&一部鉄筋(RC造) 9階建 | |
| 契約期間 | 2年間 | 契約形態 | |
| 償却 | 0ヶ月 | 設備 | エレベーター |
| 更新料 | 0ヶ月 | 更新日 | 2025年09月11日 |
| 備考 | |||



お問い合わせの際は、「部屋No.44349」とお伝えください。






























高級感あふれるエントランス、外観はガラス張りで存在感があります。
周辺は飲食店が多く、近くを甲州街道が通っています