推奨利用人数
25人~29人
丸八青山ビル 9階
- 所在地:東京都港区南青山2丁目27番27号
- 交通:東京メトロ銀座線「外苑前」駅徒歩2分
- 交通2:東京メトロ半蔵門線「表参道」駅徒歩7分
- 交通3:都営大江戸線「青山一丁目」駅徒歩8分
| 賃料:相談 (税別) | 管理費:相談 (税別) |
| 敷金:12ヶ月- | 礼金:0ヶ月 |
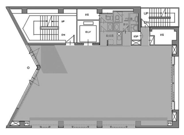
| 面積:178.15m² | 所在階:地上9階 |
| 間取り:事務所 | 築年月:1987年01月 |
| 賃料/管理費 | 相談 (税別)/相談 (税別) | フリーレント | 0ヶ月 |
|---|---|---|---|
| 敷金/礼金 | 12ヶ月/0ヶ月 | 内見・入居 | 相談 |
| 間取り | 事務所 | 面積 | 178.15m² |
| 所在階 | 地上9階 | 最大スペース | |
| 住所 | 東京都港区南青山2丁目27番27号 | 最寄駅 | 東京メトロ銀座線「外苑前」駅徒歩2分 東京メトロ半蔵門線「表参道」駅徒歩7分 都営大江戸線「青山一丁目」駅徒歩8分 |
| その他交通 | 築年月 | 1987年01月 | |
| 方角 | 構造 | 鉄骨鉄筋コンクリート造(SRC造) 10階建 | |
| 契約期間 | 2年間 | 契約形態 | 普通借家 |
| 償却 | 0ヶ月 | 設備 | エレベーター , OAフロア |
| 更新料 | 0ヶ月 | 更新日 | 2025年09月11日 |
| 備考 | |||



お問い合わせの際は、「部屋No.55171」とお伝えください。






























1987年竣工、ミラーガラスのカーテンウォールの外観の建物です。新耐震基準をクリアしています。
基準となるフロアは約54坪、EVからダイレクトインのタイプですので、レイアウトに工夫が必要です。室内には男女別のトイレと給湯室があります。
周辺にはコンビニやドラッグストアやカフェがありますので利便性も良好です。