推奨利用人数
20人~24人
ONEST錦糸町スクエア(旧称:倉持ビルディング第一) 9階
- 所在地:東京都墨田区江東橋2丁目3番7号
- 交通:JR中央・総武線「錦糸町」駅徒歩6分
- 交通2:都営新宿線「住吉」駅徒歩9分
- 交通3:都営新宿線「菊川」駅徒歩14分
| 賃料:相談 (税別) | 管理費:相談 (税別) |
| 敷金:12ヶ月- | 礼金:0ヶ月 |
| 面積:133.98m² | 所在階:地上9階 |
| 間取り:事務所 | 築年月:1992年04月 |
| 賃料/管理費 | 相談 (税別)/相談 (税別) | フリーレント | 0ヶ月 |
|---|---|---|---|
| 敷金/礼金 | 12ヶ月/0ヶ月 | 内見・入居 | 内見可 |
| 間取り | 事務所 | 面積 | 133.98m² |
| 所在階 | 地上9階 | 最大スペース | |
| 住所 | 東京都墨田区江東橋2丁目3番7号 | 最寄駅 | JR中央・総武線「錦糸町」駅徒歩6分 都営新宿線「住吉」駅徒歩9分 都営新宿線「菊川」駅徒歩14分 |
| その他交通 | 築年月 | 1992年04月 | |
| 方角 | 構造 | 鉄骨構造(S造) 9階建 | |
| 契約期間 | 2年間 | 契約形態 | 普通借家 |
| 償却 | 0ヶ月 | 設備 | エレベーター |
| 更新料 | 0ヶ月 | 更新日 | 2025年09月11日 |
| 備考 | ・9階:広さ表示はグロス面積です | ||



お問い合わせの際は、「部屋No.62069」とお伝えください。






























1992年竣工で新耐震基準をクリア。ガラス張りの外観が目をひきます。エントランス内は天井が高く、開放感のある空間です。
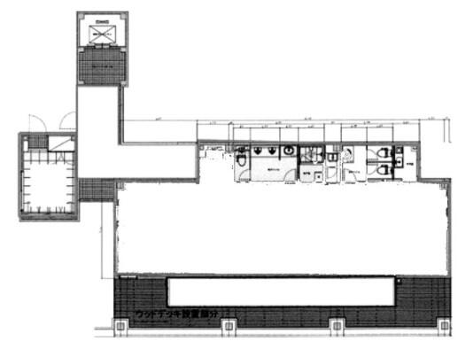
貸室は使い勝手の良い1フロア1テナント。長方形に近い形状で、効率よくレイアウト可能です。
周辺には飲食店が豊富にあるのでランチに困りません。