推奨利用人数
3人~4人
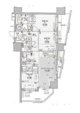
【成約済み】パレステージ上野 702号室
- 所在地:東京都台東区上野7丁目13番15号
- 交通:JR山手線「上野」駅徒歩5分
- 交通2:東京メトロ日比谷線「入谷」駅徒歩7分
- 交通3:東京メトロ銀座線「稲荷町」駅徒歩9分
| 賃料:-- | 管理費:15,000円 |
| 敷金:2ヶ月- | 礼金:1ヶ月 |
| 面積:64.53m² | 所在階:地上7階 |
| 間取り:3LDK | 築年月:2017年02月 |
| 賃料/管理費 | --/15,000円 | フリーレント | 0ヶ月 |
|---|---|---|---|
| 敷金/礼金 | 2ヶ月/1ヶ月 | 内見・入居 | 相談 |
| 間取り | 3LDK | 面積 | 64.53m² |
| 所在階 | 地上7階 | 最大スペース | |
| 住所 | 東京都台東区上野7丁目13番15号 | 最寄駅 | JR山手線「上野」駅徒歩5分 東京メトロ日比谷線「入谷」駅徒歩7分 東京メトロ銀座線「稲荷町」駅徒歩9分 |
| その他交通 | 築年月 | 2017年02月 | |
| 方角 | 構造 | 鉄筋コンクリート造(RC造) 14階建 | |
| 契約期間 | 2年間 | 契約形態 | 普通借家 |
| 償却 | 0.5ヶ月 | 設備 | エレベーター |
| 更新料 | 1ヶ月 | 更新日 | 2025年09月11日 |
| 備考 | |||
| その他費用 | ・鍵交換費用 |
||



お問い合わせの際は、「部屋No.62195」とお伝えください。






























昭和通り沿い角地に立地していて視認性の高い物件です!
重厚感のある大型レジデンスで、オートロックや防犯カメラを導入しているのでセキュリティー面も安心です。
最寄りが新幹線も含め多くの路線が利用可能な上野駅なので、各地へのアクセスがスムーズです!