推奨利用人数
25人~29人
【成約済み】Planex Watt 3階
- 所在地:東京都渋谷区恵比寿南1丁目16番13号
- 交通:JR山手線「恵比寿」駅徒歩3分
- 交通2:東急東横線「代官山」駅徒歩9分
- 交通3:―
| 賃料:-- (税別) | 管理費:119,231円 (税別) |
| 敷金:6ヶ月- | 礼金:1ヶ月 |
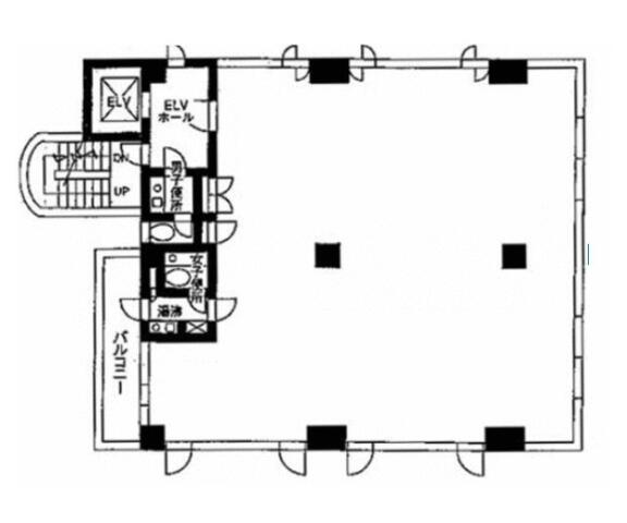
| 面積:171.37m² | 所在階:地上3階 |
| 間取り:事務所 | 築年月:1992年09月 |
| 賃料/管理費 | -- (税別)/119,231円 (税別) | フリーレント | 0ヶ月 |
|---|---|---|---|
| 敷金/礼金 | 6ヶ月/1ヶ月 | 内見・入居 | 相談 |
| 間取り | 事務所 | 面積 | 171.37m² |
| 所在階 | 地上3階 | 最大スペース | |
| 住所 | 東京都渋谷区恵比寿南1丁目16番13号 | 最寄駅 | JR山手線「恵比寿」駅徒歩3分 東急東横線「代官山」駅徒歩9分 ― |
| その他交通 | 築年月 | 1992年09月 | |
| 方角 | 構造 | 鉄骨鉄筋コンクリート造(SRC造) 5階建 | |
| 契約期間 | 3年間 | 契約形態 | 普通借家 |
| 償却 | 1ヶ月 | 設備 | エレベーター |
| 更新料 | 1ヶ月 | 更新日 | 2025年09月11日 |
| 備考 | |||



お問い合わせの際は、「部屋No.62407」とお伝えください。






























グレーの石造りの外観の新耐震基準ビル
オートロック、24時間セキュリティなどセキュリティ面も安心です。
周辺にはスーパーやコンビニ、飲食店が多数あり、ランチにも困りません。