推奨利用人数
3人~4人
【成約済み】御苑レジデンス 216号室
- 所在地:東京都渋谷区千駄ヶ谷5丁目5番10号
- 交通:東京メトロ副都心線「北参道」駅徒歩4分
- 交通2:JR山手線「代々木」駅徒歩6分
- 交通3:JR中央・総武線「千駄ケ谷」駅徒歩7分
| 賃料:-- | 管理費:10,000円 |
| 敷金:1ヶ月- | 礼金:2ヶ月 |
| 面積:54.65m² | 所在階:地上2階 |
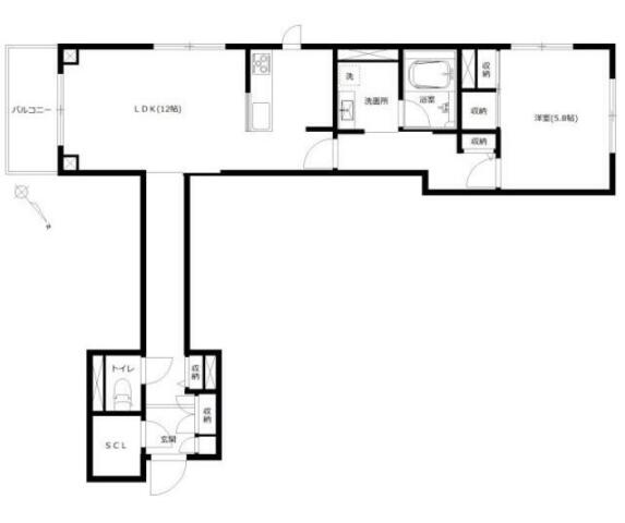
| 間取り:1LDK | 築年月:2022年02月 |
| 賃料/管理費 | --/10,000円 | フリーレント | 0ヶ月 |
|---|---|---|---|
| 敷金/礼金 | 1ヶ月/2ヶ月 | 内見・入居 | 内見可 |
| 間取り | 1LDK | 面積 | 54.65m² |
| 所在階 | 地上2階 | 最大スペース | |
| 住所 | 東京都渋谷区千駄ヶ谷5丁目5番10号 | 最寄駅 | 東京メトロ副都心線「北参道」駅徒歩4分 JR山手線「代々木」駅徒歩6分 JR中央・総武線「千駄ケ谷」駅徒歩7分 |
| その他交通 | 築年月 | 2022年02月 | |
| 方角 | 構造 | 鉄骨構造(S造) 4階建 | |
| 契約期間 | 2年間 | 契約形態 | 普通借家 |
| 償却 | 0ヶ月 | 設備 | エレベーター |
| 更新料 | 1ヶ月 | 更新日 | 2025年09月11日 |
| 備考 | ・喫煙不可、楽器不可、DIY不可、ペット不可 | ||
| その他費用 | ・駐車場:35,000円/月 ・バイク置き場:5,000円/月 ・駐輪場:無料 |
||



お問い合わせの際は、「部屋No.62840」とお伝えください。






























ベージュとブラウンのすっきりした外観の新耐震基準マンションです。
うれしいバストイレ別、インターネット使用料無料。
モニター付きオートロック、防犯用ガラスなどセキュリティ面も安心。
宅配ボックスがあり、荷物の受け取りにも便利です。
周辺にはコンビニや飲食店が点在しているので、ランチにも困りません。