推奨利用人数
30人~39人
【成約済み】芝清水ビル 4階
- 所在地:東京都港区芝大門2丁目3番11号
- 交通:JR山手線「浜松町」駅徒歩5分
- 交通2:都営浅草線「大門」駅徒歩2分
- 交通3:都営三田線「芝公園」駅徒歩2分
| 賃料:相談 (税別) | 管理費:相談 (税別) |
| 敷金:12ヶ月- | 礼金:0ヶ月 |
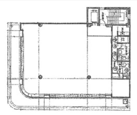
| 面積:219.9m² | 所在階:地上4階 |
| 間取り:事務所 | 築年月:1981年03月 |
| 賃料/管理費 | 相談 (税別)/相談 (税別) | フリーレント | 0ヶ月 |
|---|---|---|---|
| 敷金/礼金 | 12ヶ月/0ヶ月 | 内見・入居 | 内見可 |
| 間取り | 事務所 | 面積 | 219.9m² |
| 所在階 | 地上4階 | 最大スペース | |
| 住所 | 東京都港区芝大門2丁目3番11号 | 最寄駅 | JR山手線「浜松町」駅徒歩5分 都営浅草線「大門」駅徒歩2分 都営三田線「芝公園」駅徒歩2分 |
| その他交通 | 築年月 | 1981年03月 | |
| 方角 | 構造 | 鉄筋コンクリート造(RC造) 5階建 | |
| 契約期間 | 2年間 | 契約形態 | 普通借家 |
| 償却 | 0ヶ月 | 設備 | エレベーター |
| 更新料 | 0ヶ月 | 更新日 | 2025年09月11日 |
| 備考 | |||



お問い合わせの際は、「部屋No.63173」とお伝えください。






























1981年竣工ですが、新耐震基準をクリアしています。5階建てでエレベーターは1基設置。エントランスは明るく清潔感があります。
セキュリティーは機械警備を導入しているので安心して利用可能です。
貸室は使い勝手の良い1フロア1テナントで室内に男女別トイレが設置されています。
角地で窓面が大きいので、採光性に期待ができます。