推奨利用人数
25人~29人
【成約済み】京橋RKビル 2階
- 所在地:東京都中央区京橋2丁目5番24号
- 交通:東京メトロ銀座線「京橋」駅徒歩1分
- 交通2:東京メトロ有楽町線「銀座一丁目」駅徒歩5分
- 交通3:都営浅草線「宝町」駅徒歩1分
| 賃料:相談 (税別) | 管理費:相談 (税別) |
| 敷金:12ヶ月- | 礼金:応相談 |
| 面積:168.4m² | 所在階:地上2階 |
| 間取り:事務所 | 築年月:2022年06月 |
| 賃料/管理費 | 相談 (税別)/相談 (税別) | フリーレント | 0ヶ月 |
|---|---|---|---|
| 敷金/礼金 | 12ヶ月/応相談 | 内見・入居 | 相談 |
| 間取り | 事務所 | 面積 | 168.4m² |
| 所在階 | 地上2階 | 最大スペース | |
| 住所 | 東京都中央区京橋2丁目5番24号 | 最寄駅 | 東京メトロ銀座線「京橋」駅徒歩1分 東京メトロ有楽町線「銀座一丁目」駅徒歩5分 都営浅草線「宝町」駅徒歩1分 |
| その他交通 | 築年月 | 2022年06月 | |
| 方角 | 構造 | 鉄骨構造(S造) 14階建 | |
| 契約期間 | 応相談 | 契約形態 | 定期借家 |
| 償却 | 相談 | 設備 | エレベーター , OAフロア |
| 更新料 | 更新日 | 2025年09月11日 | |
| 備考 | |||



お問い合わせの際は、「部屋No.63610」とお伝えください。






























2022年6月竣工予定のオフィス。落ち着いたグレーの外壁の重厚感のある建物です。
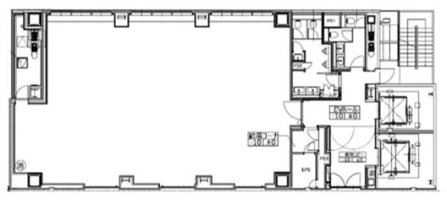
基準となるフロアは1フロア約50坪。EVは2基あり、ストレスなくご利用いただけます。1フロア1テナント利用のオフィスです。
各フロア共用部に男女別のトイレと給湯室がありますので、貸室内は効率よくレイアウト可能。個別空調やOAフロアなど設備も充実しています。
セキュリティは機械警備を導入済みで安心です。
京橋駅のほか、宝町駅や銀座一丁目駅も徒歩5分以内でアクセスできる便利な好立地。
周辺はオフィス街。カフェや飲食店も多くランチ環境も充実しています。