推奨利用人数
40人以上
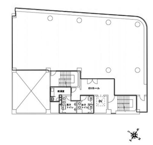
【成約済み】OS築地ビル 2階
- 所在地:東京都中央区築地4丁目4番12号
- 交通:都営浅草線「東銀座」駅徒歩6分
- 交通2:都営大江戸線「築地市場」駅徒歩5分
- 交通3:東京メトロ日比谷線「築地」駅徒歩5分
| 賃料:相談 (税別) | 管理費:相談 (税別) |
| 敷金:10ヶ月- | 礼金:0ヶ月 |
| 面積:289.72m² | 所在階:地上2階 |
| 間取り:事務所 | 築年月:1983年07月 |
| 賃料/管理費 | 相談 (税別)/相談 (税別) | フリーレント | 0ヶ月 |
|---|---|---|---|
| 敷金/礼金 | 10ヶ月/0ヶ月 | 内見・入居 | 内見可 |
| 間取り | 事務所 | 面積 | 289.72m² |
| 所在階 | 地上2階 | 最大スペース | |
| 住所 | 東京都中央区築地4丁目4番12号 | 最寄駅 | 都営浅草線「東銀座」駅徒歩6分 都営大江戸線「築地市場」駅徒歩5分 東京メトロ日比谷線「築地」駅徒歩5分 |
| その他交通 | 築年月 | 1983年07月 | |
| 方角 | 構造 | 鉄骨鉄筋コンクリート造(SRC造) 8階建 | |
| 契約期間 | 2年間 | 契約形態 | 普通借家 |
| 償却 | 0ヶ月 | 設備 | エレベーター , OAフロア |
| 更新料 | 0ヶ月 | 更新日 | 2025年09月11日 |
| 備考 | |||



お問い合わせの際は、「部屋No.63657」とお伝えください。






























1983年竣工、光沢のあるベージュのタイル張りの外観の建物です。新耐震基準をクリアしています。
基準となるフロアは1フロア約87坪。EV1基、1フロア1テナント利用のオフィスです。
室外に男女別のトイレと給湯室が配置されていますので、貸室内は効率よくレイアウトすることが可能です。
OAフロアや個別空調、セキュリティは機械警備を導入していますので設備面も充実しています。
新大橋通りから少し入った場所に立地、建物の向かいにはには「国立がんセンター」があり、目印になります。
周辺は築地らしく飲食店が多いエリア。ランチタイムが楽しみです!