推奨利用人数
7人~8人
【成約済み】TKKビル 1階
- 所在地:東京都千代田区神田富山町1番2号
- 交通:JR山手線「神田」駅徒歩2分
- 交通2:都営新宿線「岩本町」駅徒歩4分
- 交通3:東京メトロ丸の内線「淡路町」駅徒歩8分
| 賃料:-- (税別) | 管理費:46,445円 (税別) |
| 敷金:3ヶ月- | 礼金:0ヶ月 |
| 面積:43.83m² | 所在階:地上1階 |
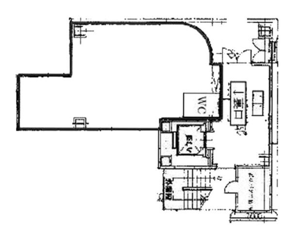
| 間取り:事務所 | 築年月:1988年10月 |
| 賃料/管理費 | -- (税別)/46,445円 (税別) | フリーレント | 0ヶ月 |
|---|---|---|---|
| 敷金/礼金 | 3ヶ月/0ヶ月 | 内見・入居 | 内見可 |
| 間取り | 事務所 | 面積 | 43.83m² |
| 所在階 | 地上1階 | 最大スペース | |
| 住所 | 東京都千代田区神田富山町1番2号 | 最寄駅 | JR山手線「神田」駅徒歩2分 都営新宿線「岩本町」駅徒歩4分 東京メトロ丸の内線「淡路町」駅徒歩8分 |
| その他交通 | 築年月 | 1988年10月 | |
| 方角 | 構造 | 鉄骨構造(S造) 8階建 | |
| 契約期間 | 2年間 | 契約形態 | 普通借家 |
| 償却 | 0ヶ月 | 設備 | エレベーター |
| 更新料 | 1ヶ月 | 更新日 | 2025年09月11日 |
| 備考 | |||



お問い合わせの際は、「部屋No.63696」とお伝えください。






























1988年竣工、ミラーガラス張りの美築オフィスです。新耐震基準をクリアしています。
基準となるフロアは1フロア約19坪。EV1基、1フロア1テナント利用のオフィスです。
2面採光の室内は、余計な柱もなくレイアウトしやすい間取り。室外に専用のトイレ、給湯室は室内の使いやすい間取りです。
機械警備導入済みでセキュリティ面も安心してご利用いただけます。
神田平成通り沿いに立地。周辺はオフィスや店舗が並ぶ賑やかなエリアです。