推奨利用人数
7人~8人
【成約済み】大晴ビル 4A号室
- 所在地:東京都豊島区西池袋3丁目25番2号
- 交通:JR山手線「池袋」駅徒歩2分
- 交通2:東京メトロ有楽町線「要町」駅徒歩13分
- 交通3:―
| 賃料:-- (税別) | 管理費:0円 (税別) |
| 敷金:6ヶ月- | 礼金:1ヶ月 |
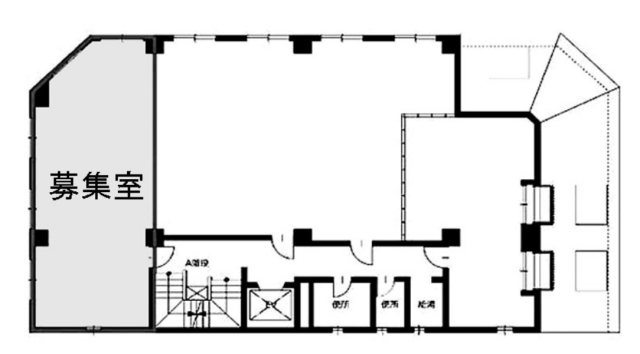
| 面積:48.46m² | 所在階:地上4階 |
| 間取り:事務所 | 築年月:1976年03月 |
| 賃料/管理費 | -- (税別)/0円 (税別) | フリーレント | 0ヶ月 |
|---|---|---|---|
| 敷金/礼金 | 6ヶ月/1ヶ月 | 内見・入居 | 内見可 |
| 間取り | 事務所 | 面積 | 48.46m² |
| 所在階 | 地上4階 | 最大スペース | |
| 住所 | 東京都豊島区西池袋3丁目25番2号 | 最寄駅 | JR山手線「池袋」駅徒歩2分 東京メトロ有楽町線「要町」駅徒歩13分 ― |
| その他交通 | 築年月 | 1976年03月 | |
| 方角 | 構造 | 鉄筋コンクリート造(RC造) 5階建 | |
| 契約期間 | 2年間 | 契約形態 | |
| 償却 | 10% | 設備 | エレベーター , OAフロア |
| 更新料 | 1ヶ月 | 更新日 | 2025年09月11日 |
| 備考 | |||



お問い合わせの際は、「部屋No.64393」とお伝えください。






























1976年竣工、1フロア1テナントで気兼ねなく使えます。
駅近ながら比較的落ち着いた雰囲気のエリア。西池袋公園からすぐの立地で、都会でありながら緑豊かな環境も魅力です。
近くにコンビニや郵便局があるので何かと便利です。
多くの路線が乗り入れる池袋駅を拠点に、各地へのアクセスがスムーズです。