推奨利用人数
30人~39人
【成約済み】NBC浜松町ビル 2階
- 所在地:東京都港区浜松町2丁目9番3号
- 交通:JR山手線「浜松町」駅徒歩1分
- 交通2:都営大江戸線「大門」駅徒歩5分
- 交通3:都営三田線「芝公園」駅徒歩8分
| 賃料:-- (税別) | 管理費:0円 (税別) |
| 敷金:8ヶ月- | 礼金:0ヶ月 |
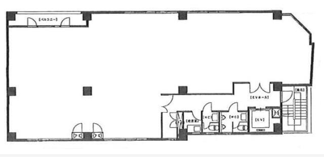
| 面積:212.43m² | 所在階:地上2階 |
| 間取り:事務所 | 築年月:1985年03月 |
| 賃料/管理費 | -- (税別)/0円 (税別) | フリーレント | 0ヶ月 |
|---|---|---|---|
| 敷金/礼金 | 8ヶ月/0ヶ月 | 内見・入居 | 内見可 |
| 間取り | 事務所 | 面積 | 212.43m² |
| 所在階 | 地上2階 | 最大スペース | |
| 住所 | 東京都港区浜松町2丁目9番3号 | 最寄駅 | JR山手線「浜松町」駅徒歩1分 都営大江戸線「大門」駅徒歩5分 都営三田線「芝公園」駅徒歩8分 |
| その他交通 | 築年月 | 1985年03月 | |
| 方角 | 構造 | 鉄筋コンクリート造(RC造) 6階建 | |
| 契約期間 | 2年間 | 契約形態 | |
| 償却 | 2ヶ月 | 設備 | エレベーター , OAフロア |
| 更新料 | 0ヶ月 | 更新日 | 2025年09月11日 |
| 備考 | ■1階エントランスリニューアル実施済み | ||



お問い合わせの際は、「部屋No.64790」とお伝えください。






























浜松町駅すぐそば、線路沿いに立地するオフィスです
角地に立地していますので、視認性も良好
1階はコンビニエンスストアで、便利です
機械警備完備・不停止機能付EVでセキュリティも安心です
周辺は飲食店が多いエリア、ランチ時に困ることはないでしょう