推奨利用人数
7人~8人
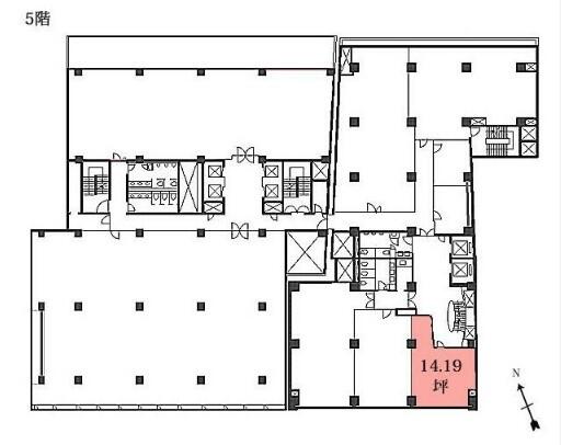
【成約済み】虎ノ門実業会館(本館) 5階
- 所在地:東京都港区虎ノ門1丁目1番20号
- 交通:東京メトロ銀座線「虎ノ門」駅徒歩1分
- 交通2:東京メトロ千代田線「霞ケ関」駅徒歩4分
- 交通3:都営三田線「内幸町」駅徒歩7分
| 賃料:-- (税別) | 管理費:84,430円 (税別) |
| 敷金:12ヶ月- | 礼金:0ヶ月 |
| 面積:46.19m² | 所在階:地上5階 |
| 間取り:事務所 | 築年月:1955年11月 |
| 賃料/管理費 | -- (税別)/84,430円 (税別) | フリーレント | 0ヶ月 |
|---|---|---|---|
| 敷金/礼金 | 12ヶ月/0ヶ月 | 内見・入居 | 相談 |
| 間取り | 事務所 | 面積 | 46.19m² |
| 所在階 | 地上5階 | 最大スペース | |
| 住所 | 東京都港区虎ノ門1丁目1番20号 | 最寄駅 | 東京メトロ銀座線「虎ノ門」駅徒歩1分 東京メトロ千代田線「霞ケ関」駅徒歩4分 都営三田線「内幸町」駅徒歩7分 |
| その他交通 | JR山手線「新橋」駅10分 | 築年月 | 1955年11月 |
| 方角 | 構造 | 鉄骨鉄筋コンクリート造(SRC造) 9階建 | |
| 契約期間 | 2年間 | 契約形態 | 定期借家 |
| 償却 | 0ヶ月 | 設備 | エレベーター , OAフロア |
| 更新料 | 更新日 | 2025年09月11日 | |
| 備考 | |||



お問い合わせの際は、「部屋No.64865」とお伝えください。






























1962年竣工、外堀通り沿いのシルバーのパネル張りの外観の建物です。エレベーターホールは重厚感のあるデザインで落ち着いた雰囲気を作っています。
基準となるオフィスは約150坪、分割区画の募集もございます。
EV2基、共用部に男女別トイレと給湯室、OA床など設備面も充実しております。
コンビニ(ファミリーマート)や飲食店、ドラッグストアーや理髪店までがビル内にあり全ての用事がビル内で済んでしまう大変便利なオフィスです!
虎ノ門駅のほか、内幸町駅や霞が関駅、新橋駅などが徒歩10分以内で利用可能です!