推奨利用人数
20人~24人
【成約済み】日伸ビル(岩本町) 7階
- 所在地:東京都千代田区岩本町1丁目3番2号
- 交通:都営新宿線「岩本町」駅徒歩4分
- 交通2:JR山手線「神田」駅徒歩5分
- 交通3:東京メトロ日比谷線「小伝馬町」駅徒歩5分
| 賃料:-- (税別) | 管理費:0円 (税別) |
| 敷金:8ヶ月- | 礼金:0ヶ月 |
| 面積:132.23m² | 所在階:地上7階 |
| 間取り:事務所 | 築年月:1988年10月 |
| 賃料/管理費 | -- (税別)/0円 (税別) | フリーレント | 0ヶ月 |
|---|---|---|---|
| 敷金/礼金 | 8ヶ月/0ヶ月 | 内見・入居 | 内見可 |
| 間取り | 事務所 | 面積 | 132.23m² |
| 所在階 | 地上7階 | 最大スペース | |
| 住所 | 東京都千代田区岩本町1丁目3番2号 | 最寄駅 | 都営新宿線「岩本町」駅徒歩4分 JR山手線「神田」駅徒歩5分 東京メトロ日比谷線「小伝馬町」駅徒歩5分 |
| その他交通 | 築年月 | 1988年10月 | |
| 方角 | 構造 | 鉄骨鉄筋コンクリート造(SRC造) 9階建 | |
| 契約期間 | 2年間 | 契約形態 | 普通借家 |
| 償却 | 2ヶ月 | 設備 | エレベーター |
| 更新料 | 1ヶ月 | 更新日 | 2025年09月11日 |
| 備考 | |||



お問い合わせの際は、「部屋No.66335」とお伝えください。






























1988年竣工、ベージュのタイル張りの外観の建物です。新耐震基準をクリアしています。
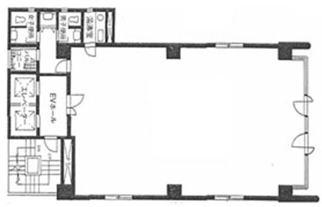
基準となるフロアは1フロア約40坪。EVは2基ありストレスなくご利用いただけます。
各フロアに男女別のトイレと給湯室がありますので利便性も良好!セキュリティは機械警備を導入していますので安心です。
神田金物通り沿いに立地、周辺にはコンビニや飲食店もあり利便性も良好です。