推奨利用人数
20人~24人
【成約済み】神宮前浅間ビル 7階
- 所在地:東京都渋谷区神宮前6丁目18番13号
- 交通:東京メトロ千代田線「明治神宮前」駅徒歩5分
- 交通2:JR山手線「渋谷」駅徒歩8分
- 交通3:JR山手線「原宿」駅徒歩11分
| 賃料:相談 (税別) | 管理費:相談 (税別) |
| 敷金:10ヶ月- | 礼金:0ヶ月 |
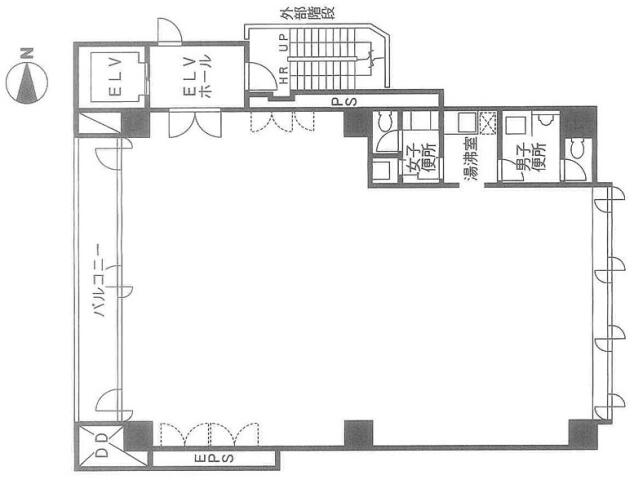
| 面積:164.43m² | 所在階:地上7階 |
| 間取り:事務所 | 築年月:1991年01月 |
| 賃料/管理費 | 相談 (税別)/相談 (税別) | フリーレント | 相談ヶ月 |
|---|---|---|---|
| 敷金/礼金 | 10ヶ月/0ヶ月 | 内見・入居 | 内見可 |
| 間取り | 事務所 | 面積 | 164.43m² |
| 所在階 | 地上7階 | 最大スペース | |
| 住所 | 東京都渋谷区神宮前6丁目18番13号 | 最寄駅 | 東京メトロ千代田線「明治神宮前」駅徒歩5分 JR山手線「渋谷」駅徒歩8分 JR山手線「原宿」駅徒歩11分 |
| その他交通 | 東京メトロ半蔵門線「表参道」駅13分 | 築年月 | 1991年01月 |
| 方角 | 構造 | 鉄骨鉄筋コンクリート造(SRC造) 8階建 | |
| 契約期間 | 2年間 | 契約形態 | 普通借家 |
| 償却 | 0ヶ月 | 設備 | エレベーター |
| 更新料 | 0ヶ月 | 更新日 | 2025年09月11日 |
| 備考 | |||



お問い合わせの際は、「部屋No.66684」とお伝えください。






























グレーの石張りの外観の新耐震基準物件
室内は1フロア1テナントで、レイアウトしやすい形状です。
トイレは男女別で専有部分にあります。
周辺にはコンビニや飲食店が多数あり、ランチタイムも楽しみです。