推奨利用人数
15人~19人
【成約済み】シャンピア秋葉原ビル 5階
- 所在地:東京都千代田区神田佐久間町2丁目8番1号
- 交通:JR山手線「秋葉原」駅徒歩3分
- 交通2:都営新宿線「岩本町」駅徒歩4分
- 交通3:JR中央・総武線「浅草橋」駅徒歩9分
| 賃料:相談 (税別) | 管理費:相談 (税別) |
| 敷金:12ヶ月- | 礼金:0ヶ月 |
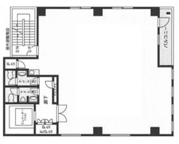
| 面積:129.32m² | 所在階:地上5階 |
| 間取り:事務所 | 築年月:2016年04月 |
| 賃料/管理費 | 相談 (税別)/相談 (税別) | フリーレント | 0ヶ月 |
|---|---|---|---|
| 敷金/礼金 | 12ヶ月/0ヶ月 | 内見・入居 | 相談 |
| 間取り | 事務所 | 面積 | 129.32m² |
| 所在階 | 地上5階 | 最大スペース | |
| 住所 | 東京都千代田区神田佐久間町2丁目8番1号 | 最寄駅 | JR山手線「秋葉原」駅徒歩3分 都営新宿線「岩本町」駅徒歩4分 JR中央・総武線「浅草橋」駅徒歩9分 |
| その他交通 | 築年月 | 2016年04月 | |
| 方角 | 構造 | 鉄骨構造(S造) 8階建 | |
| 契約期間 | 2年間 | 契約形態 | 普通借家 |
| 償却 | 0ヶ月 | 設備 | エレベーター , OAフロア |
| 更新料 | 0ヶ月 | 更新日 | 2025年09月11日 |
| 備考 | |||



お問い合わせの際は、「部屋No.67167」とお伝えください。






























白と黒のストライプが印象的なデザインの外観の建物です。新耐震基準をクリアしています。
基準となるフロアは1フロア約40坪。EV1基、1フロア1テナント利用のオフィスです。
室外に男女別のトイレ、給湯設備は室内にありますので使い勝手も良好です。セキュリティは機械警備を導入しています。
日比谷線「秋葉原」駅の4番出入口より、浅草橋方面へ向かっておよそ1分ほどの場所に立地しています。周辺は静かなオフィス街で集中してお仕事に取り組めます。
秋葉原駅周辺は飲食店も多くランチにも便利です。