推奨利用人数
9人~10人
【成約済み】風光ビル 2階
- 所在地:東京都千代田区岩本町1丁目5番5号
- 交通:東京メトロ日比谷線「小伝馬町」駅徒歩4分
- 交通2:都営新宿線「岩本町」駅徒歩7分
- 交通3:JR山手線「神田」駅徒歩10分
| 賃料:-- (税別) | 管理費:0円 (税別) |
| 敷金:相談- | 礼金:0ヶ月 |
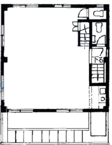
| 面積:57.82m² | 所在階:地上2階 |
| 間取り:事務所 | 築年月:1976年09月 |
| 賃料/管理費 | -- (税別)/0円 (税別) | フリーレント | 0ヶ月 |
|---|---|---|---|
| 敷金/礼金 | 相談/0ヶ月 | 内見・入居 | 内見可 |
| 間取り | 事務所 | 面積 | 57.82m² |
| 所在階 | 地上2階 | 最大スペース | |
| 住所 | 東京都千代田区岩本町1丁目5番5号 | 最寄駅 | 東京メトロ日比谷線「小伝馬町」駅徒歩4分 都営新宿線「岩本町」駅徒歩7分 JR山手線「神田」駅徒歩10分 |
| その他交通 | JR総武本線「新日本橋」駅8分 | 築年月 | 1976年09月 |
| 方角 | 構造 | 鉄筋コンクリート造(RC造) 3階建 | |
| 契約期間 | 2年間 | 契約形態 | 定期借家 |
| 償却 | 2ヶ月 | 設備 | |
| 更新料 | 1ヶ月 | 更新日 | 2025年09月11日 |
| 備考 | ・EVなし | ||



お問い合わせの際は、「部屋No.71161」とお伝えください。






























水天宮通りから1本入ったところに立地、近隣にはコインパーキングもあるので
車を利用する際にも便利です。
オフィスは1フロア1テナントで気兼ねなく利用できます。
屋内部に柱がなくレイアウトしやすい形状です。
周辺にはコンビニ、飲食店もあるのでランチにも困りません。