推奨利用人数
30人~39人
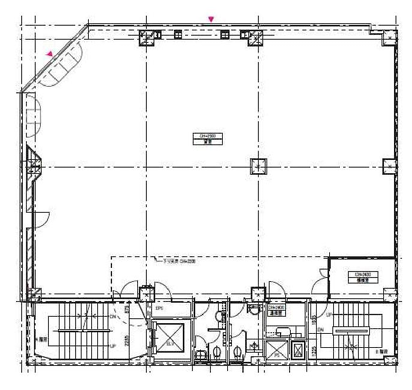
藤久ビル西2号館 4階
- 所在地:東京都豊島区西池袋3丁目28番1号
- 交通:JR山手線「池袋」駅徒歩4分
- 交通2:東京メトロ副都心線「要町」駅徒歩11分
- 交通3:―
| 賃料:1,260,930円 | 管理費:420,310円 |
| 敷金:10ヶ月- | 礼金:0ヶ月 |
| 面積:252.64m² | 所在階:地上4階 |
| 間取り:事務所 | 築年月:1971年01月 |
| 賃料/管理費 | 1,260,930円/420,310円 | フリーレント | |
|---|---|---|---|
| 敷金/礼金 | 10ヶ月/0ヶ月 | 内見・入居 | 内見可 |
| 間取り | 事務所 | 面積 | 252.64m² |
| 所在階 | 地上4階 | 最大スペース | |
| 住所 | 東京都豊島区西池袋3丁目28番1号 | 最寄駅 | JR山手線「池袋」駅徒歩4分 東京メトロ副都心線「要町」駅徒歩11分 ― |
| その他交通 | 築年月 | 1971年01月 | |
| 方角 | 構造 | 鉄筋コンクリート造(RC造) 8階建 | |
| 契約期間 | 2年間 | 契約形態 | 定期借家 |
| 償却 | 0ヶ月 | 設備 | エレベーター |
| 更新料 | 0ヶ月 | 更新日 | 2025年10月18日 |
| 備考 | |||



お問い合わせの際は、「部屋No.71880」とお伝えください。






























基準となるフロアは1フロア約76坪。
室内には余計な柱もなく、レイアウトしやすい間取りです。